Деревянная лестница на каркасе из листа металла
В стоимость входит: замер, проектирование, изготовление, монтаж, грунтование, отделка под ключ, материал и ограждения
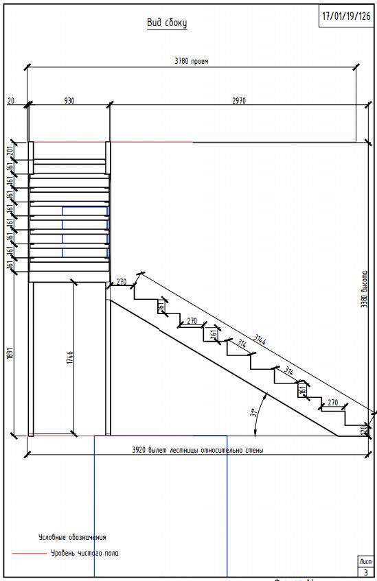
В доме нашего заказчика уже стояла временная деревянная лестница, вместо которой нужно было установить каркас нашей работы такой же г-образной конфигурации. Прямо у лестницы располагалось отверстие в полу 1-го этажа и винтовая лестница в цокольный этаж.
Стены в доме обшиты гиспокартоном. Пол бетонный с покрытием плиткой. Перекрытие – кирпич в 2 слоя, можно крепить каркас лестницы к ним. В доме уже была выполнена чистовая отделка стен и пола, поэтому монтажные работы должны были производиться с максимальной аккуратностью.


Инженер рассчитал г-образную конструкцию, аналогичную временной лестнице. Так как в доме уже выполнена была чистовая отделка стен, то монтаж потребовал использования защиты стен, а также применения жидких гвоздей.
После установки каркаса мы приступили к обшивке ступеней сосной в цвет орех. Также заказчик попросил сделать ограждения для лестницы из того же дерева.


ЗЛМК