Как спроектировать металлическую лестницу. Проектирование каркаса лестницы с комментариями от профессионального проектировщика лестниц.
В этом выпуске Дима нам покажет на своем личном примере как спроектировать металлический каркас лестницы из швеллера и уголка. Дмитрий, проектировщик который спроектировал более 450 лестниц за два года (от самых простых лесенок до лестницы на стадион Локомотив в Москве).
Тем кому интересно научиться проектировать лестницу смотрите полностью видео, тем кому просто интересно что в конечном результате получается полистайте до 30-35 мунуты видео и посмотрите финишную прямую работы в проектировании.
Кому интересно, вы можете скачать проект этого каркаса лестницы по ссылке.
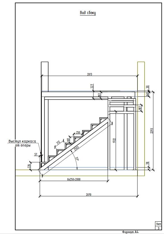
Вот какой проект каркаса лестницы получился:



И если вы не смотрели другие выпуски, то посмотрите.
ЗЛМК