Содержание
Параметры лестницы и ее расположение в пространстве. Как рассчитывать лестницы.
Как спроектировать лестницу на второй этаж в доме
Дополнительные материалы к статье.
Данная статья поможет вам самостоятельно рассчитать и подготовить проект деревянной лестницы на металлическом каркасе на второй этаж, используя программу “Компас”. Мы рассматриваем наиболее популярный вариант лестницы закрытого типа Г образной конфигурации и тремя забежными ступенями, который подойдет для любого частного дома.
Кстати, отвечу на вопрос: "Кто я такой, чтобы вас учить расчету лестниц?" Я тот человек, который за 2018 год (на 31 октября) установил 724 лестниц. Конечно, я не делаю все своими руками и у меня есть своя команда. Но, думаю, что факта изготовления и установки 724 лестниц достаточно, чтобы Вы смогли дочитать эту статью до конца.

Пример реализации такой металлической лестницы в дом на второй этаж можете почитать в этой статье (правда в этой статье немного другие размеры проема, но это сути не меняет).

Перед тем как приступить к этой статье, вот, посмотрите на фото лестниц, которые можно сделать с помощью данной пошаговой инструкции. Точнее конечный вариант лестницы может быть именно такой как на картинке, но мы с вами сейчас будем проектировать металлический каркас лестницы и обшивку деревом.

Как именно по данному проекту своими руками построить лестницу, вы можете узнать из этой подробной инструкции: «Металлическая лестница в дом на второй этаж своими руками».
Вы можете посмотреть видеоверсию данного урока, или прочитать данную статью и, распечатав, пользоваться ею как инструкцией.
Параметры лестницы и ее расположение в пространстве. Как рассчитывать лестницы.
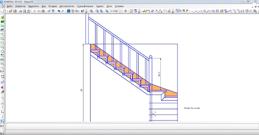
Итак, приступаем. Мы рассматриваем, как проектируется классическая лестница в программе «Компас». Задаем произвольный проём с размерами 148 на 282 см.

Для тех кто сейчас не до конца понимает, что это будет за проем, я показываю фотографии с похожего объекта:




Высота от пола первого этажа до пола второго этажа у нас составляет 300 см. Все размеры для удобства берем именно в см.

Определимся с количеством подъёмов, который мы должны совершить, чтобы подняться на второй этаж.
Высота одного подъема может колебаться от 15 до 20 см, в зависимости от достаточности места для изготовления лестницы.
Попробуем разделить 300 см на 16 предполагаемых ступеней. Получаем 18,75 см.
Количество ступеней получаем 15 штук.
Т.е. на одну меньше чем количество подъёмов.
Лестница имеет 2 марша и поворот между ними.

Прикинем количество ступеней на втором марше, т. е. на выходе на второй этаж. Для этого берём отступ с размером 27 см, соответствующий длине проступи, и умножаем на семь ступеней.
Вообще, размеры можно варьировать в пределах от 25 до 30 см.
В данном случае мы поступаем так: 27 см - это длина проступи, умножаем ее на 7 ступеней и получаем 189 см. Давайте отложим это расстояние на чертеже. Вот это расстояние.
И далее разобьем его на равные участки по 27 см. После того как отрезок длинной 189 см разбит на 7 частей, замеряем оставшуюся длину. На этом участке она равна 93 см. На данное время это ширина первого марша, т. е. ширина первого подъёма. Значит и ширину второго подъёма принимаем пока 93 см.

Прочерчиваем второй марш и ступени. Сначала рассмотрим вариант лестницы с площадкой. Чертим площадку размером 93 см на 93 см. Чертим ступени первого марша, их тоже 7.

Площадка более удобна при подъёме чем забежные ступени, но ходить по такой лестнице с площадкой мы не сможем.
Объясню почему. На 6-ой ступени расстояние от ступени до потолка должно быть не менее 190 см, но дойдя до неё мы уже поднялись на высоту 112,5 см. Толщина плиты перекрытия второго этажа составляет, как правило, не менее 22 см. Подвесной потолок который будет крепится к этой плите, - не менее 5 см. Итого в общей сложности набирается 139,5 см. Теперь из общей высоты в 300 см вычитаем 139,5 см и получаем остаток 160, 5 см. Т.е. расстояние от 6-ой ступени до потолка будет составлять всего лишь 160, 5 см. А там должно быть 190 см. Получается при подъёме и спуске мы будет упираться головой в потолок. Нам этого расстояния 160,5 см явно не достаточно.Давайте рассмотрим другой вариант с забежными ступенями. Чертим из угла площадки окружность так, как показано на чертеже.

У начерченной окружности убираем дуги, расположенные вне зоны площадки.

Делим оставшуюся часть окружности на 3 части. Проводим лучи. На месте площадки бывшей появилось ещё 2 ступени. И дополнительно 2 подъема. Поэтому на первом марше 2 ступени убираем и вместо 7-ми степеней на 1-м марш у нас осталось 5 ступеней. Вот в этом месте, на месте 6-ой ступени появилась 4-ая ступень. 
Теперь чтобы подняться на 4-ую ступень, надо совершить всего четыре подъема. Четыре подъёма умножаем на 18,75 см и получаем 75 см. Теперь складываем все эти расстояния, т. е. плита перекрытия, плюс высота подвесного потолка, плюс высота до 4-ой ступени. Складываем 22 см, плюс 5 см, плюс 75 см. В итоге получаем расстояние равное 102 см. Из общей высоты 300 см, вычитаем 102 см и получаем 198 см.

Т.е. в этом месте на 4-ой ступени расстояние от 4ой ступени, до потолка равно 198 см. Получается, что человек ростом 190 см, стоя на ступени номер 4 при движении вперёд, не упрётся головой в плиту перекрытия. Т.е. этот вариант у нас более удачный и более работоспособный по сравнению с площадкой. То что мы сейчас рассмотрели это называется предварительный расчёт лестницы и он используется для определения геометрических размеров лестницы. Её расположение в пространстве.

Как спроектировать лестницу на второй этаж в доме
Лестница состоит из металлокаркаса и обшивки деревом. С видимой стороны лестницы, как правило, делается свес ступени около 3 см. Покажем его бирюзовым цветом. Вот в этом месте по отношению к облицовочной доске лестницы делается свес ступени и вот он показан бирюзовым цветом.

Под ступенями располагается облицовочная доска толщиной 1,8 см. Обозначим её розовым цветом. Вот эта доска.

Внутри лестничной конструкции располагаются металлические швеллера — косоуры. Они имеют ширину 10 см и толщину 4,5 см. Делаются из швеллера номер 10. Для простоты возьмем толщину в 5 см. Толщина швеллера обозначена на чертеже серым цветом, а место соединения косоуров обозначим черным цветом. В этом месте ставится столб который делается из уголка размерами 4,5 на 4,5 см. В итоге мы получаем 50-тый квадрат.

Прочерчиваем проекцию уголков которые будут привариваться к металлическому швеллеру и обозначаем их зеленым цветом.

Теперь в местах пересечения угловых соединений ступеней и швеллеров ставим отметки как показано на этом чертеже. Это места излома швеллеров. Т.е. в поперечном разрезе мы увидим что это такое, когда будет показан поперечный разрез.

В этих местах, местах расположения угловых ступеней, я кладу ступени не на уголки, а прямо на швеллера.
Чтобы закрепить деревянные ступени, привариваем маленькие насверленные уголки и уже к ним прикрепляем ступени.
Убираем на время угловые ступени. Сейчас нам надо найти расположение деревянного центрального столба. До серого косоура проводим вспомогательные линии. Они идут вдоль косоуров по центру. На этих линиях будут находится балясины.

Соответственно, на пересечении этих линий будет стоять и деревянный центральный столб. Столб имеет размеры 9 см на 9 см и в данном случае его центр будет находиться в центре черного квадрата и его центр будет находиться, в свою очередь, в центре металлического столба. А деревянный столб будет стоять над металлическим столбом сверху.
Но лучше балясины располагать ближе к краю ступени. В данном случае центр балясин лучше расположить на одном см от розовой облицовочной доски. Таким образом, центр расположения балясин смещается на чертеже вниз, а конкретно мы сместили ближе к краю ступени.

Пунктирная оранжевая линия - это линия расположения балясин. Она находится в одном см от облицовочной доски. Красный квадрат это место расположения поворотного столба. Т.е. у нас пересечение линий сместилось и, соответственно, столб также сместился.

Пририсовываем перемычки между ступенями. Они и формируют ступень. Уголок, уголок и перемычка между ними из того же уголка 40-го или 45-го. Выделяем их ярко зелёным цветом.

И теперь выберем на ступени номер 8 место для расположения столба. Т.е. на ступени номер 8 мы ставим столб, в зависимости от этого и формируется сама ступень номер 8.
Потом прочерчиваем ступень номер 7. Получается, что она доходит до створа 6-ой ступени. И 6-ая ступень пририсовывается автоматически.

Теперь пририсовываем подступенники. Как правило, они бывают толщиной от 1 до 1,8 см. Мы рисуем подступенники толщиной 1,8 см и обозначим их желтым цветом. На этом чертеже я сделал некоторые изменения - я изменил форму некоторых угловых ступеней, вернее основания под угловые ступени. Сами угловые ступени останутся прежней формы.

Уголки 8-й и 7-й ступеней я сдвинул, для того чтобы подступенная доска приходила и упиралась в центральный столб, а не выходила за него снаружи. Со стороны стены я добавил ещё одну пристенную доску, она тоже толщиной 1,8 см и выделил коричневым цветом.

Каждая ступень должна выходить за подступенник и образовывать свес над следующей ступенью.
Размер свеса колеблется от 2 см до 4 см.
Я его делаю 3 см. Нарисуем этот свес тонкой черной линией.

С видом сверху мы закончили. По этому виду сделаем вид сбоку. Для этого чертим боковые вертикальные вспомогательные линии и чертим полы первого и второго этажа.

На следующем чертеже увидим вспомогательные линии. Вот мы провели вспомогательные линии для металлокаркаса.

Толщина нашей деревянной ступени равна 4 см. Поэтому основание металлического каркаса под ступень ниже уровня ступени, на 4 см. Т.е. ниже на толщину ступени. С помощью вспомогательных линий чертим уровень полов на 4 см ниже.

Т.е. мы опускаем уровень полов. Вот та вспомогательная линия, где стоит крестик, - это виртуальный пол, скажем так. Относительно них мы будем чертить боковой разрез.

Проводим прямую от виртуального пола второго этажа, до виртуального пола первого этажа. После этого с помощью меню редактора «Разбить», разбиваем её на 16 равных частей и удаляем промежутки через один и проводим горизонтальные вспомогательные линии.

По вертикальным, горизонтальным вспомогательным линиям начинаем прочерчивать ступени.

Прочерчиваем металлический столб, сваренный из уголков 45 на 45 мм. Он получается как раз после сваривания 50 на 50 мм.

Прочерчиваем верхний швеллер и выводим его на столб.

Начинаем прорисовку уголков которые закреплены на швеллерах, а также швеллер под угловые ступени.

Убираю всё лишнее и получаю вот такую вот картинку.

Теперь начинаем прочерчивать подступенники.

После подступенников прочерчиваем ступени.

Убираем все лишнии лини и подкрасим ступени и подступенники в какой-нибудь цвет. Начинаем рисовать пристенную доску.

Нарисованную пристенную доску подкрасим ее в персиковый цвет.

Начертим по одной балясине на каждую ступень. Для этого проведем вспомогательные линии и расположим балясины по центру проступи, где мы расположим балясины.

Прежде чем чертить саму балясину зададим высоту от центра проступи до поручня.
Высоту балясины, как правило, задают в 90 см, а толщину поручня - 5 - 7 см.

Задаём толщину балясины 5 см. То как мы задаем расположение балясин, это никакое не правило и не догма. Мы их можем двигать как нам вздумается. И располагать как нам вздумается, но без фанатизма, так, впрочем, можно поступать и со всей лестницей.

С помощью вспомогательных линий прочерчиваем столб.

Т.е. с чертежа расположения ступеней - вид сверху, берем вспомогательные линии и прочерчиваем наш деревянный столб.

На чертеже видно, что столб заехал на подступенную доску на 4 или 5 мм. Это в более приближенном виде.

Значит при монтаже его можно немного сдвинуть в сторону или в этом месте убрать толщину доски с помощью фрезы. Убираем всё лишнее и получаем вот такую вот картинку.

Разворачиваем вид сверху на 90 градусов и чертим вспомогательные линии.

Чертим металлоконструкцию вид сбоку нижнего марша.

Прочерчиваем всю металлическую часть этого вида.

Убираем лишнее.

Чертим подступенники.

Чертим ступени.

Чертим вспомогательные линии для столба и чертим сам столб.

Разбиваем проступи на 2 части. По центру проступи ставим балясины. Поручень располагаем на высоте 90 см от центра проступи.

Дочерчиваем чертеж. Подкрашиваем, чтобы было понятнее.

С этих чертежей можно снимать любые размеры.
Дополнительные материалы к статье
Вы также можете посмотреть видео на тему проектирования металлических лестниц:
1. Как спроектировать металлическую лестницу. Проектирование каркасов лестницы с комментариями.
2. Урок Скетчап (SketchUp) по проектированию металлического каркаса или ломаного косоура.
3. Как спроектировать лестницу. Видео от Первого по лестницам.
4. Также Вы можете проверить свои расчеты и получить совет по улучшению степени комфортности лестницы с помощью нашего онлайн калькулятора:
Онлайн калькулятор расчета размеров лестницы
ЗЛМК